Property Type
1948
Year Built
269,969
Available SF
105.65 AC
Land Area
Details
Zoning
I-H: Heavy Industrial
Parcel ID
82-33-000-008
Year Renovated
2018
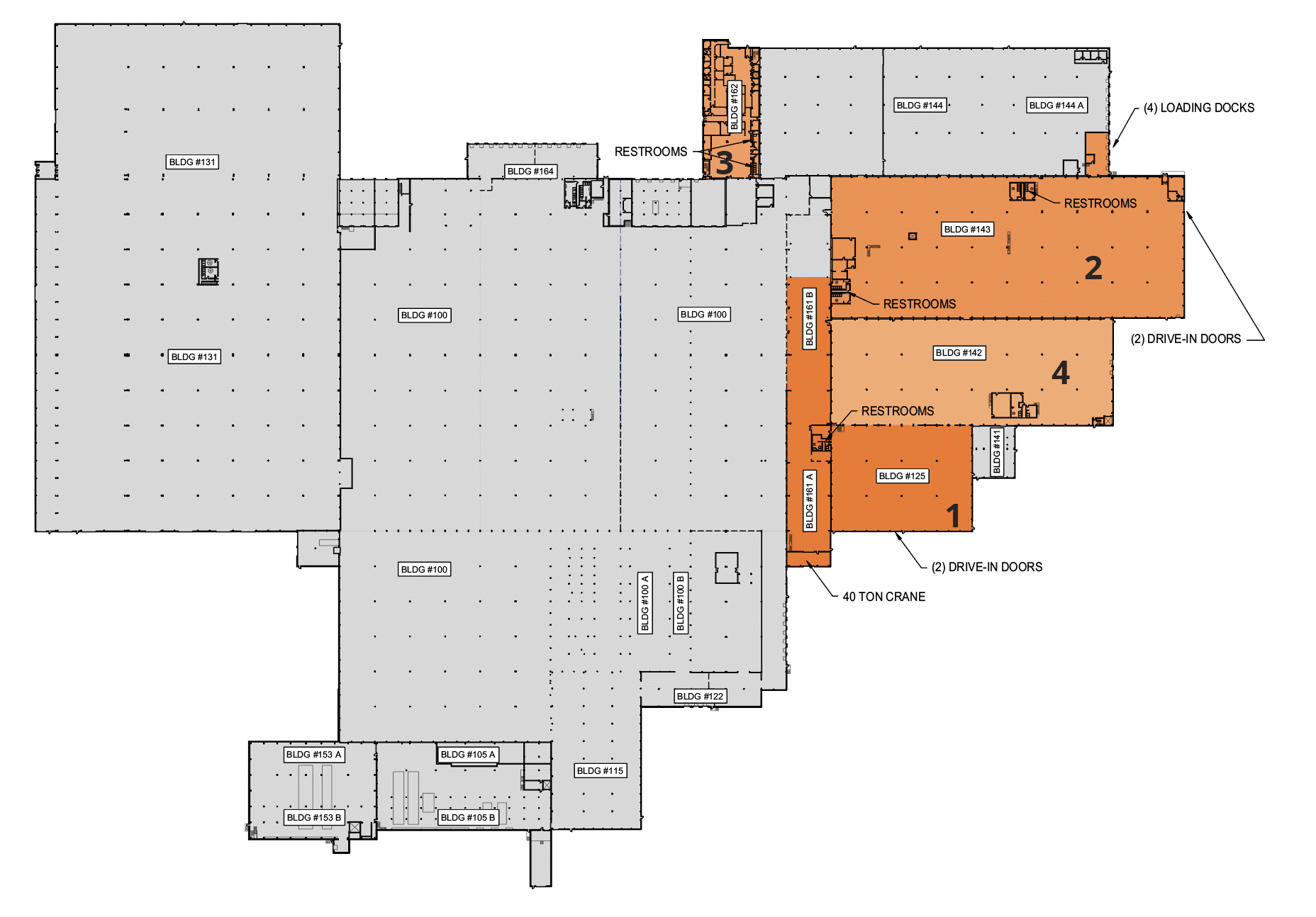
WH 1 (Bldg 125, 161)
56,600 SF | Clear Height: 20’ – 27’ | OH Drive-In Doors: 2 | 40-Ton Crane | Restrooms
WH 2 (Bldg 143)
104,414 SF | Clear Height: 17’ 8” – 36’ 6” | OH Drive-In Doors: 2 | Docks: 4 | Restrooms | Small Office | ESFR Fire Protection
WH 3 (Bldg 142)
61,444 SF | Clear Height: 22' | Docks: 2 | Restrooms
Office (Bldg 162)
47,509 SF | 4 Floors | Restrooms | Private Offices | Conference Rooms
Column Width/Depth
50' x 50'
Floors
6” - 12” Reinforced Concrete
Walls
Metal & Masonry
Roof
Reinforced Rubber Membrane
Lighting
LED
Power
One Substation, 13.3 KV @ 480V, 3-Phase
Fire Safety
100% Wet
Drive-In Doors
4
Rail
IRR
Parking
1,837 Surface Spaces
Dock Doors
6
Clear Height
17' 8" - 36' 6"
Column Spacing
50' x 50'














