Property Type
1945
Year Built
48,476
Available SF
8.05 AC
Land Area
Details
Zoning
IL2: Light Industrial
Parcel ID
242-0431-000-5
Year Renovated
2017
Column Width/Depth
40' x 40'
Floors
6” Reinforced Concrete
Walls
Metal & Masonry
Roof
Rubber Membrane
Lighting
High Efficiency T5
Power
Heavy Power Throughout
Fire Safety
100% Wet
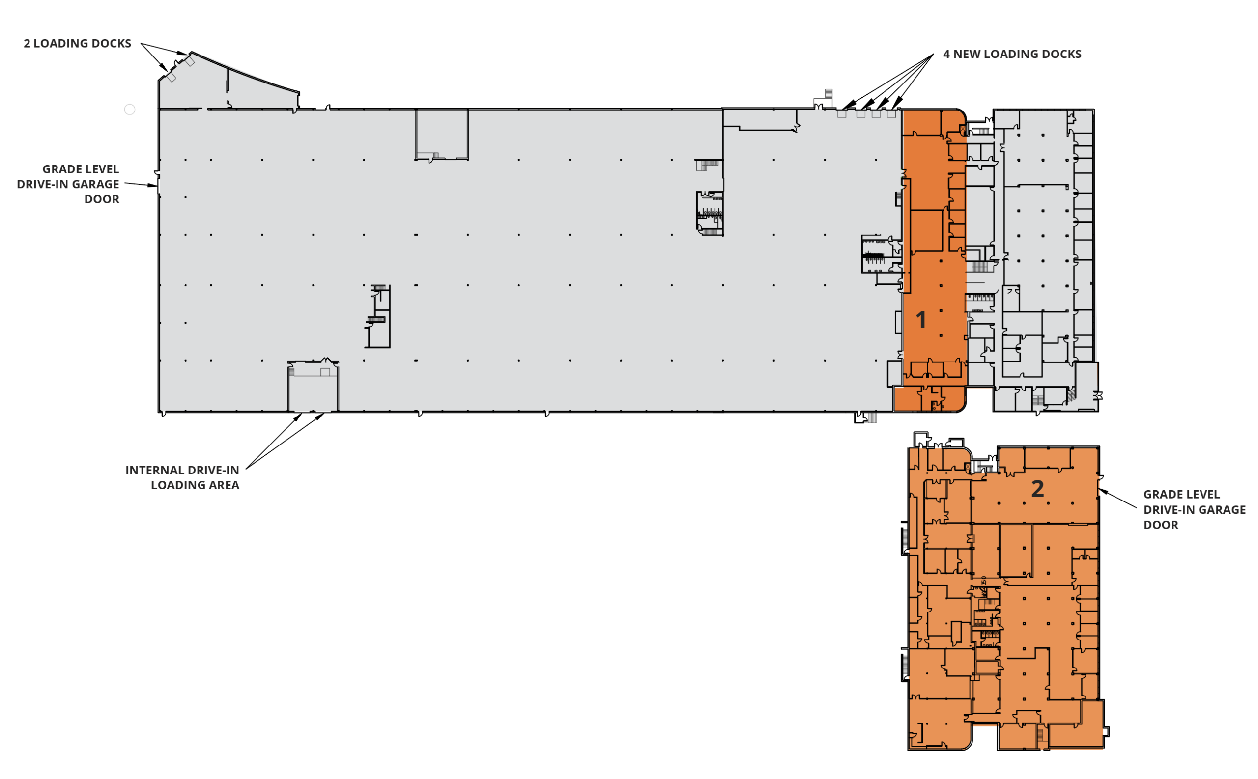
Drive-In Doors
1
Parking
80+ Surface & 20+ Trailer Spaces
Clear Height
13' - 18'
Opex Estimate
$0.89/SF
Dock Doors
8
Column Spacing
40' x 40'

















