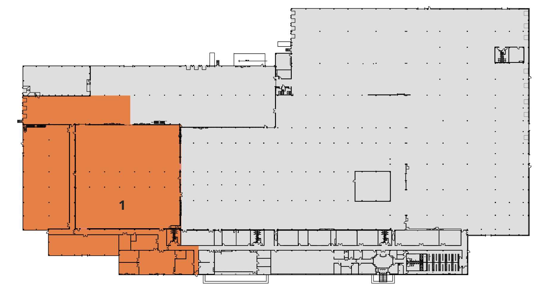
Property Type
1989
Year Built
59,870
Available SF
21.95 AC
Land Area
Details
Parcel ID
6877-855-859
Office Space
13,000 SF
Column Width/Depth
Varies
Floors
6” Reinforced Concrete Slab
Walls
2” Insulated Metal Sandwich Panel
Roof
Single-Ply Membrane Over Insulated Metal Deck
Lighting
Fluorescent, 400-Watt Metal Halide, T-8, & LED with Motion Sensors
Power
Heavy Power; See brochure for details.
Fire Safety
.05/1500 to .65/2000 Density
Dock Doors
3
Drive-In Doors
2
Parking
Approximately 169 Parking Spaces
Restrooms
Men: 2 Toilets, 2 Sinks, 2 Urinals | Women: 2 Toilets, 2 Sinks
Office/Lab/Locker/Break Area
13,000 SF
Water
Supplied by Greenwood CPW; 8” Main, 6” Lines
Sewer
Supplied by Greenwood CPW; 18” Main, Two 6” Lines
Natural Gas
Supplied by Greenwood CPW; 6” Lines, 5 PSI
Compressed Air
Compressors Removed; Air Lines in Place Throughout Area
HVAC
18 Roof-Mounted Trane Intellipak, Voyager, and York Units Ranging from 10- to 30-Tons







